Skip to content

butler manufacturing

We like to go after the complex projects, especially the ones no one wants. We frequently work on multiple commercial and industrial projects in varying capacities and roles at a time. 

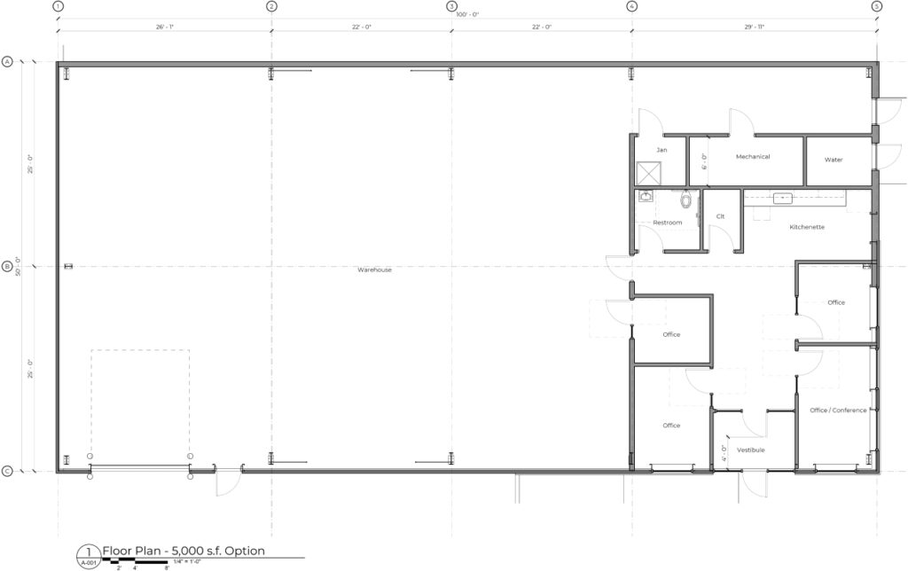
Butler Model 5k

This 5,000 square-foot pre-engineered Butler model is perfect for small business owners and new companies that need space for inventory, small manufacturing and packaging operations, and extra storage needs.

Building dimensions: 50’ x 100’ x 18’ low eave

  • (1) 12’ x 14’ Overhead grade door
  • Butler Shadowall metal siding
  • Butler MR-24 standing seam roof
  • Storefront glazing windows and glass entrance door in office area
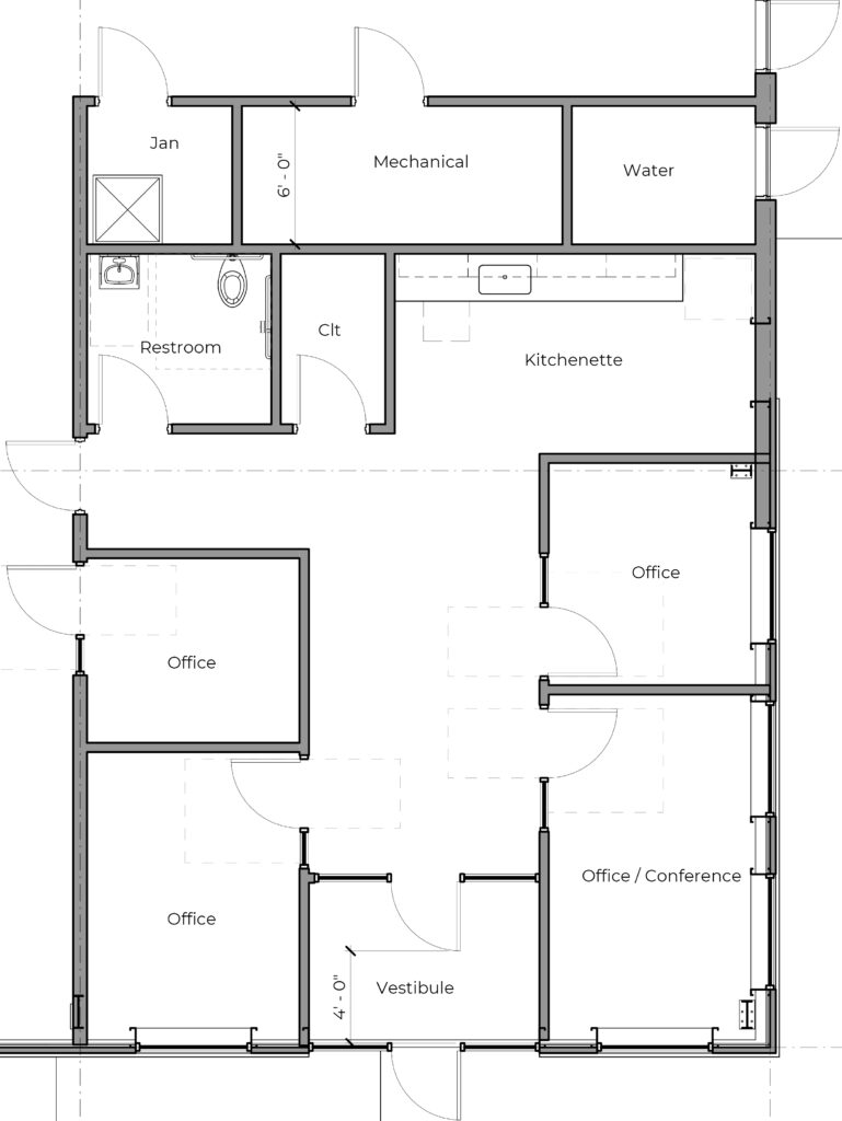
  • Build to suit office needs
  • (3) Offices & (1) conference room
  • (1) Single occupant restroom
  • Kitchenette with fridge and sink
  • Hollow metal frames and doors for egress doors
  • 200 Amp, three phase electrical service, LED lighting, exterior illumination
  • Utility allowance
  • 4” thick concrete slab figured in office area and 6” in warehouse/shop area
  • Masonry leveling course around perimeter of building
  • Architectural enhancements suitable for typical protective covenant requirements
  • All architectural and engineering fees and building plan approvals include

REQUEST AN ESTIMATE

Model 12k

Learn More

Model 30k

Learn More

Model 50k

Learn More

Model 100k

Learn More

Model 100k Precast

Learn More