Skip to content

butler manufacturing

We like to go after the complex projects, especially the ones no one wants. We frequently work on multiple commercial and industrial projects in varying capacities and roles at a time. 

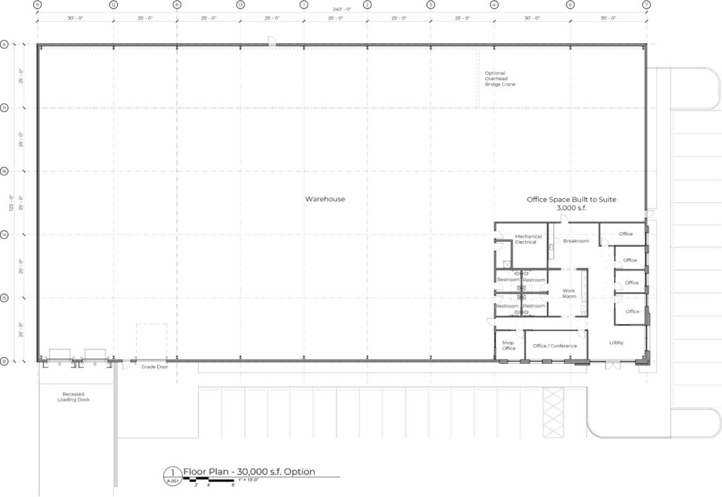
Butler Model 30k

This 30,000 square-foot pre-engineered Butler model is an excellent option for growing transportation and logistics operations, manufacturing facilities, and packaging, distribution, and warehousing businesses. This model has the following features:

Building dimensions: 125’ x 240’ x 28’ low eave

  • (1) 12’ x 14’ Overhead grade door
  • Butler insulated metal panel (IMP) siding
  • Butler MR-24 standing seam roof
  • Storefront glazing windows and full glass double storefront doors in office area
  • Clearstory storefront windows in warehouse area
  • Recessed loading dock with (2) 10’ x 10’ overhead doors and dock levelers
  • Optional overhead bridge crane
  • Build to suit office needs
  • (5) Offices & (1) conference room
  • (4) Single occupant restrooms
  • Breakroom
  • (1) Work room with casework
  • 200 Amp, three phase electrical service, LED lighting, exterior illumination
  • Utility allowance
  • 4” Thick concrete slab figured in office area and 6” in warehouse/shop area
  • Office area has 16’ masonry wainscot and 8’ wainscot with leveling course around rest of building perimeter
  • Front entrance has architectural metal siding and pre-engineered metal canopy
  • Architectural enhancements suitable for typical protective covenant requirements
  • All architectural and engineering fees and building plan approvals included

REQUEST AN ESTIMATE

Model 5k

Learn More

Model 12k

Learn More

Model 50k

Learn More

Model 100k

Learn More

Model 100k Precast

Learn More